※以上照片若非室內,即為附近環境介紹,非刊登物件本身。

北屯3房漂亮公寓
台中市北屯區松竹路二段
(13)
695
單價
30.75
萬/坪
參考月付
20,718
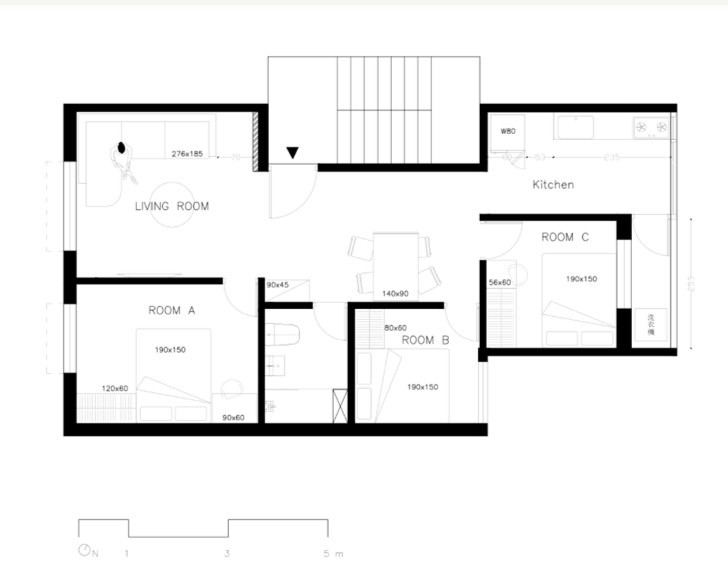
建坪:22.6
屋齡:44.4
格局:3房2廳1衛
樓層:5 / 5層
專案經紀人
詳細資料
總價:695
建物總面積:22.6
每坪單價:30.75萬/坪
主建物:21.16
地坪:0.0
附屬:1.44
公設:0.0
現況用途:住家
物件種類:公寓
法定用途:住家用
樓層:5 / 5層
屋齡:44.4
格局:3房2廳1衛
座向:座西南朝東北
車位:
附近學區:松竹國小
鄰近市場:新一點利
鄰近公園:舊社公園
公車站名:
附近商圈:松竹商圈
物件描述

全戶電線冷熱水管更新

空間設計師規劃

智慧型電子鎖

浴室,外牆,窗框,頂樓防水更新

頂樓局部鐵皮,頂樓增強隔熱

全新三機廚具

格局方正採光通風佳

交通便捷

生活機能完善

專案經紀人
物件照片
相似物件
相似實價登錄
年月地址房屋型態總價單價建坪地坪樓層格局屋齡
11410
台中市北屯區北興街45號5樓之1
住宅大樓
(有車位)
1200
27.82
43.13
4.53
5樓/14樓
3房2廳2
26.3年
11410
台中市北屯區三光北二街56號3樓
公寓
465
20.26
22.96
6.38
3樓/5樓
2房2廳1
36.5年
11410
台中市北屯區四平路568巷7號二十四樓之7
住宅大樓
(有車位)
2350
49.46
47.51
4.18
24樓/24樓
3房2廳2
3.4年
11410
台中市北屯區文心路四段288號二十二樓之10
住宅大樓
(有車位)
868
37.48
23.16
1.92
22樓/22樓
1房1廳1
12.4年
11410
台中市北屯區太原路三段1359號九樓之6
住宅大樓
(有車位)
1300
29.16
44.58
6.42
9樓/14樓
3房2廳2
9.9年
台中市北屯區北興街45號5樓之1
住宅大樓
(有車位)
1200
年月:
11410
房屋型態:
住宅大樓
(有車位)
單價:
27.82
建坪:
43.13
地坪:
4.53
樓層:
5樓/14樓
格局:
3房2廳2
屋齡:
26.3年
台中市北屯區三光北二街56號3樓
公寓
465
年月:
11410
房屋型態:
公寓
單價:
20.26
建坪:
22.96
地坪:
6.38
樓層:
3樓/5樓
格局:
2房2廳1
屋齡:
36.5年
台中市北屯區四平路568巷7號二十四樓之7
住宅大樓
(有車位)
2350
年月:
11410
房屋型態:
住宅大樓
(有車位)
單價:
49.46
建坪:
47.51
地坪:
4.18
樓層:
24樓/24樓
格局:
3房2廳2
屋齡:
3.4年
台中市北屯區文心路四段288號二十二樓之10
住宅大樓
(有車位)
868
年月:
11410
房屋型態:
住宅大樓
(有車位)
單價:
37.48
建坪:
23.16
地坪:
1.92
樓層:
22樓/22樓
格局:
1房1廳1
屋齡:
12.4年
台中市北屯區太原路三段1359號九樓之6
住宅大樓
(有車位)
1300
年月:
11410
房屋型態:
住宅大樓
(有車位)
單價:
29.16
建坪:
44.58
地坪:
6.42
樓層:
9樓/14樓
格局:
3房2廳2
屋齡:
9.9年